Timber frame home plan under 2000 square feet!
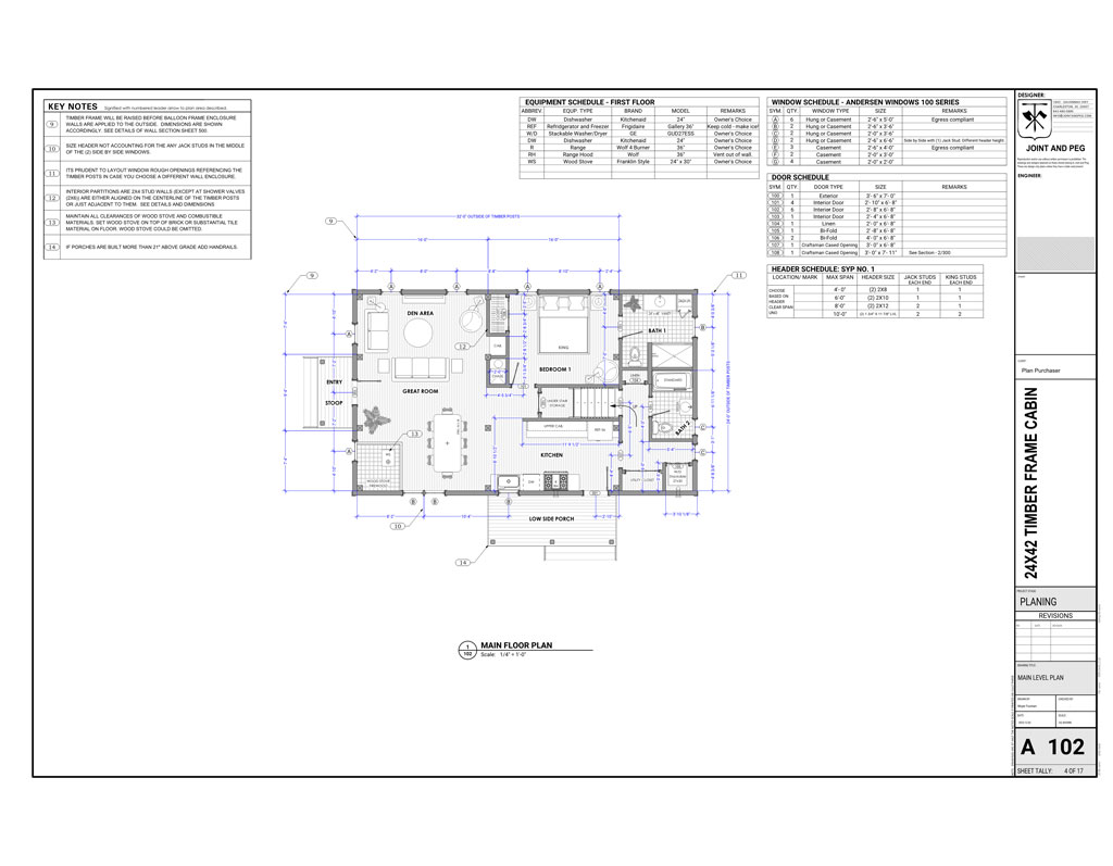
Main Floor: 1,008 square feet.
This custom designed 3 bedrooms/ 2 bathrooms small timber frame cabin plan incorporates a 3 bent timber frame structure with a conventionally built shed room off the back. Its small footprint of 24×42 will fit nicely in the smallest of areas. The optional walkout basement provides 1,008 sq/ft of unheated space and can house your mechanical equipment to heat and cool the timber frame cabin. If you choose not to build the basement the design incorporates an attic space to house the equipment instead.
On the main floor you have a great room that includes a den area and vaulted dining area. The nearby wood stove (optional) reaches up through the vaulted area to allow for ease of heating the second floor. A galley kitchen is open to the dining area and serves as access to the rear shed roof portion of the cabin.
From a small hallway next to the galley kitchen, you enter the primary bedroom on the first floor which has ample room for a king-size bed. The primary bedroom has an on-suite bathroom.
In the back area of the kitchen, you will find most of the plumbing needs including a utility closet and adjacent area for a stackable washer and dryer. Down the short hallway will lead you to one of the two full bathrooms. Across from the bathroom a stair leads up to the second floor. This stair orientation is unique and allows the upstairs inhabitants to come down to the bathroom in privacy.

Second Floor: 600 square feet.
At the top of the stair, you will have a small bedroom on the left that could be used for a bunk room or office space. Passing the small bedroom, you enter the vaulted loft area with windows on 3 sides letting in the natural light. Convert the loft area into an additional bedroom if you prefer. You can access the second bedroom from the loft area, which is perfect for sleeping in a cozy vaulted timber frame bedroom with tray ceiling and windows on two sides.

Two timber frame porches.
There is an entry exterior door on the kitchen side with a 16foot long shed roof timber frame porch. On the gable end there is also an entry door with a small, covered timber frame stoop area.
Affordable timber frame plan.
This design is based on the ideas of build better, not bigger. The timber frame has 6900 bd/ft of timber which is a small amount in comparison to most timber frame homes you will find. That coupled with efficient space planning provides a delightful design without breaking the bank.
Hybrid plan with modern conveniences.
Joint and Peg has thoughtfully designed this cabin to incorporate an ease of planning for your plumbing and mechanical needs. Too often timber frame designs do not fully develop where the modern conveniences of ductwork and plumbing will go. Most of the plumbing is kept to the end of the house under the shed roof and along the kitchen, reducing the amount of pluming and waste lines to run.
Chase for ductwork.
This plan incorporates a vertical chase cavity that runs from the basement, or crawlspace, all the way up to the attic over the 2 bedrooms on the second floor. This chase can house the ductwork from the air handler to the vents of your cabin. Mount attic supply vents to the 2×4 partition walls to supply air to the bedrooms below and loft area. Main floor vents could be in the floor system there.
This plan alleviates the problem solving of hiding ductwork in a timber frame cabin!
Plans include the following.
(17) 22×34 Sheets. Print at half scale on 11×17.
- Guidance for timber frame species.
- Timber frame drawings with elevations and noted to allow for your decision of using traditional timber frame joinery or other hardware connections.
- Andersen window schedules.
- Interior and exterior door schedules.
- Foundation plan schematic and details. *
- Floor framing plans.
- Attic Plan.
- Equipment schedules as a basis for your choices.
- Suggested finishes.
- Equipment schedule – to be completed based on climate.
- Elevations with rough opening and floor heights.
- Building sections drawings.
- Key notes for clear understanding of the drawings.
- Coherent and builder-based dimensioning.
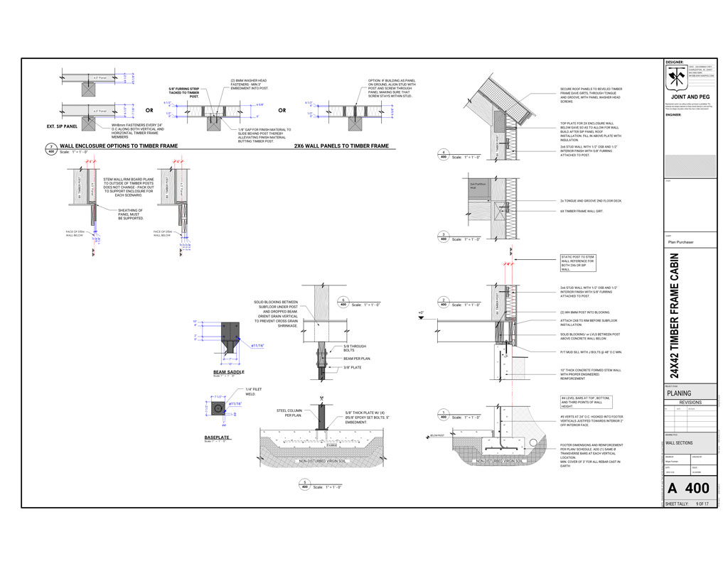
- Timber frame enclosure details that allow for a multitude of types without changing the foundation, floor, or timber frame footprints.
- Timber frame details.
- Renderings with furnishing and landscaping schematics.
- Timber list of materials.
*The foundation details may or may not work for your area as all site conditions and dirt are different. The foundation described is a 10” C.I.P. (concrete) basement wall with reinforcement.
Important Information Regarding Purchased Plans
Every state, county or municipality will have its own building and code requirements as environments differ from one region to the next. It is possible that your plan may need to be modified to comply with these local requirements and conditions. This is particularly true in coastal areas and those facing seismic events, extreme winds, and heavy snow.
If you are building in any of these areas and depending on the size and purpose of the structure, it is likely that a licensed structural engineer will be needed to provide the necessary calculations and stamp.
All pre-drawn plans from Joint and Peg do not carry a stamp from a licensed architect or a licensed engineer. Please understand that we will not be held responsible for the performance and suitability of this design plan as we do not know the criteria with where you plan to build, nor the material to be used, nor any additional structure to be implemented in the construction.
If this is a requirement from your local building department, or it proves to be the prudent thing to do, Joint and Peg can provide you with state-sealed engineered drawings for an additional fee. When it comes to the time to build, we highly recommend that you enlist our engineering service. Otherwise, the onus of this structure’s performance is solely with others, not Joint and Peg.
Single Use Terms
We authorize the use of our plans for one single project: conditioned on your obligation and agreement to comply with all local building codes, ordinances, regulations, and requirements, including permits and inspections at the time of and during construction. Multiplied use of our plans is prohibited. Thank you.



















Reviews
There are no reviews yet.