Sale!

Hammer Beam Porch Plan

Original price was: $67.00.Current price is: $35.00.

This 12×8 Hammer Beam Porch plan is the perfect addition to liven up the curb appeal of your home with a heavy timber and beam design.

Secure Checkout

Everything you need to jumpstart your project.

  • Instantly delivered plan files via .pdf documents
  • Material lists, architectural standards, construction details.
  • Detailed, clear and thorough. Guaranteed or your money back.

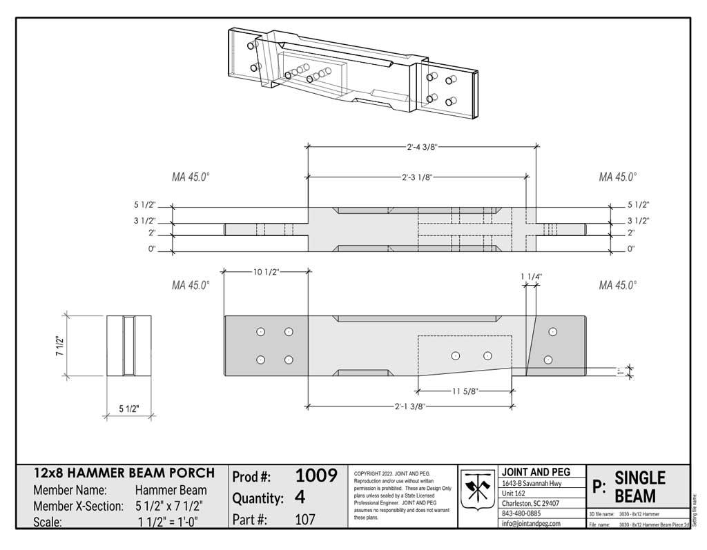
Front Porch Beams – Hammer Beam Style

Look no further than our 12×8 Hammer Beam Porch plan if you are looking for good ideas for your front porch.  This plan designed by Joint and Peg provides a timber list, core architectural plans, and single beam shop drawings.

The plans incorporate traditional timber frame joinery with pegged mortise and tenon.

All timbers are 6x’s and under.  We’ve incorporated chamfers into the design that provide that extra attention to detail and refinement.  Pegs are 1” and ¾” in diameter.

Also included is a detail on how to anchor your posts via a Timberlinx hardware connector but you are welcome to use your own ideas.

Get your timber, cut your joinery, and raise your small 12×8 Hammer Beam porch. This project will test your skill level but will provide you with a great source of pride and accomplishment when completed.

Includes (3) instant downloads upon purchase. See the free download in the tabs above to study the plans, without dimensions, before making the full investment.

F.A.Q.

Why purchase this plan from Joint and Peg?

You will be empowered to build from the plans yourself or have the work quoted by others. Having these options puts you in an advantageous position for your project.  Our designs are created, modeled, and drafter for you by an experienced timber framer.

What is included in this Hammer Beam Porch Plan by Joint and Peg?
When you purchase this plan you will receive at a minimum: a timber list for ordering materials, plan views, elevations, sections, and detailing to construct the project with authentic timber frame joinery.  All drawings and lists for this Hammer Beam Porch Plan are delivered instantly via email and download links.

I want to build this myself. Is this plan a good fit for me?
That depends on your skill level. One of our goals is to open the doors of timber framing to builders, carpenters, and DIY’s. The best of designs still requires a certain baseline of the builder to be able to know the basic concepts of construction. That said, if you have those basic skills and this Hammer Beam Porch Plan at your side, you are prepared to accomplish the project! It’s up to you at that point to get started!

If I want to build myself, which tools will I need?

We have a complete list of tools you can use from the basic DIY to the professional kit on our tool list page.

What if I want to have someone else build it? Will the plans be good for that too?
Absolutely! Your builder/contractor/tradesperson should be ecstatic to see this Hammer Beam Porch Plan as it will be easy for them to accurately gauge the work, and the materials required. This translates to you receiving an accurate quote from them.

What is a part of timber framing that is commonly overlooked?
Timbers are heavy! Timbers are not 2x lumber that can be easily lifted. Material handling is often underestimated when it comes to timber frame projects. The smallest timbers typically are 4×6. Planning to work with material that is heavy is imperative. A good mind for logistics and staging is well suited for this craft.

What if I don’t want to or can’t build with timber frame joinery?
Some of our plans include options for both timber frame joinery and metal hardware connections.  Whether this is available for this Hammer Beam Porch Plan is clarified in the description above.

That is great but can Joint and Peg build it for me?
If you are in our local service area. Joint and Peg can provide this Hammer Beam Porch Plan as a built turnkey timber frame packages for the Charleston, SC area. Please visit our Kit Pricing Page

Reviews

There are no reviews yet.

Be the first to review “Hammer Beam Porch Plan”

Your email address will not be published. Required fields are marked *

Important Info

Every state, county or municipality will have its own building and code requirements as environments differ from one region to the next. It is possible that your plan may need to be modified to comply with these local requirements and conditions. This is particularly true in coastal areas and those facing seismic events, extreme winds, and heavy snow.

If you are building in any of these areas and depending on the size and purpose of the structure, it is likely that a licensed structural engineer will be needed to provide the necessary calculations and stamp.

All pre-drawn plans from Joint and Peg do not carry a stamp from a licensed architect or a licensed engineer. Please understand that we will not be held responsible for the performance and suitability of this design plan as we don’t know the criteria with where you plan to build, nor the material to be used, nor any additional structure to be implemented in the construction.

If this is a requirement from your local building department, or it proves to be the prudent thing to do, Joint and Peg can provide you state sealed engineered drawings for an additional fee. When it comes to the time to build, we highly recommend that you enlist our engineering service.  Otherwise, the onus of this structure’s performance is solely with others, not Joint and Peg.

Single Use Terms

We authorize the use of our plans for one single project; conditioned on your obligation and agreement to comply with all local building codes, ordinances, regulations, and requirements, including permits and inspections at the time of and during construction. Multiplied use of our plans is prohibited. Thank you.

30 Day Guarantee

Joint and Peg is committed to satisfying our customers with a quality product and service. We will provide refund for this Hammer Beam Porch Plan under the following conditions:

  1. Full refunds on downloaded plans within 30 days of purchase minus a $10 processing fee.      
  2. Full refunds on shipped plans within 30 days of purchase minus a $10 processing fee + the shipping and handling fee.
  3. We request that you fill out a brief questionnaire to better understand your dissatisfaction and/or reason for the return.  This is optional for you, but we would appreciate your reasons for the refund request.
  4. Engineered Construction Plans sales are final.

After 30 days, all plan sales are final.  Please be sure that you have chosen the best plan to suit your needs and have received answers to your questions before making the purchase.

You can call us so we can assist with basic questions, and we are here Monday-Friday, 9-5EST to speak with you.

You can also email us at info@jointandpeg.com

Free Plan Download

These downloads below are free but include no dimensioning or other important notes to construct.  The plans for sale include the missing information.  Thank you.

3030 – 12×8 Hammer Beam Porch-Blank-dims

3030 – 12×8 Hammer Beam Porch-Single-Beam_Blank-dims

Shopping Cart
hammer-beam-porch-planHammer Beam Porch Plan
Original price was: $67.00.Current price is: $35.00.
Scroll to Top